top of page
Aloha_Facade_Brighter.png

ALOHA HOUSE

SS17, Subang Jaya

RM1,250,000

Lite_UnderReno_530 Badge.png
Double storey
Intermediate Terrace
Freehold
Bed.png
4
Bath.png
3

Land size

22 x 80

Built-up

1,981 sqft

Target Completion

Q4 2025

Aloha House is a calm, modern retreat nestled within one of Subang’s most established neighbourhoods. We kept its original character while softening the façade with brick textures and glass blocks, giving the home a timeless, welcoming presence from the street.

Inside, the spaces unfold with ease: a bright living area, a warm dining room and restful bedrooms that feel private yet connected to the outdoors. Natural light moves through the home throughout the day, lending a soft, airy quality to every corner.

At the back, the home truly shines. We created a courtyard - an effortless hosting space perfect for long dinners, weekend gatherings, or slow evenings under the lights. It’s a modern lanai designed for community, connection, and everyday living.

Aloha House is warm, and built for family and friends to come together - a small sanctuary in the heart of Subang Jaya.

Copy of Aloha_Facade_Brighter.png
Copy of IG_ALOHA HOUSE LISTING_251114_LAST.jpg
Copy of Slide5.JPG

Images are artist’s impressions for illustration only. Actual features may vary.

Slide2.JPG
Slide4.JPG

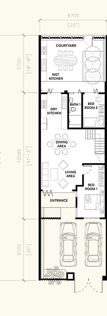
FLOOR PLAN

Aloha House - Ground Floor.png
Ground Floor
Aloha House - First Floor.png
First Floor
levi-arnold-NhY5NE9H_x8-unsplash_edited_edited_edited_edited_edited.jpg

PUBLIC TRANSPORT

LRT SS15

2 mins

AMENITIES

Subang Jaya Medical Centre

Sunway Medical Centre

Parc Subang
Empire Shopping Gallery

6 mins

10 mins

9 mins

5 mins

PLACES OF WORSHIP

Darul Ehsan Mosque

Gurdwara Sahib Subang

First Baptist Church

5 mins

6 mins

1 min

BE THE FIRST TO KNOW

Stay in the loop for updates!

Select the house(s) you’d like updates on.
bottom of page